Искате да се свържем с вас?

Въведете вашия телефон. Ние ще ви се обадим и ще отговорим на всичките ви въпроси!

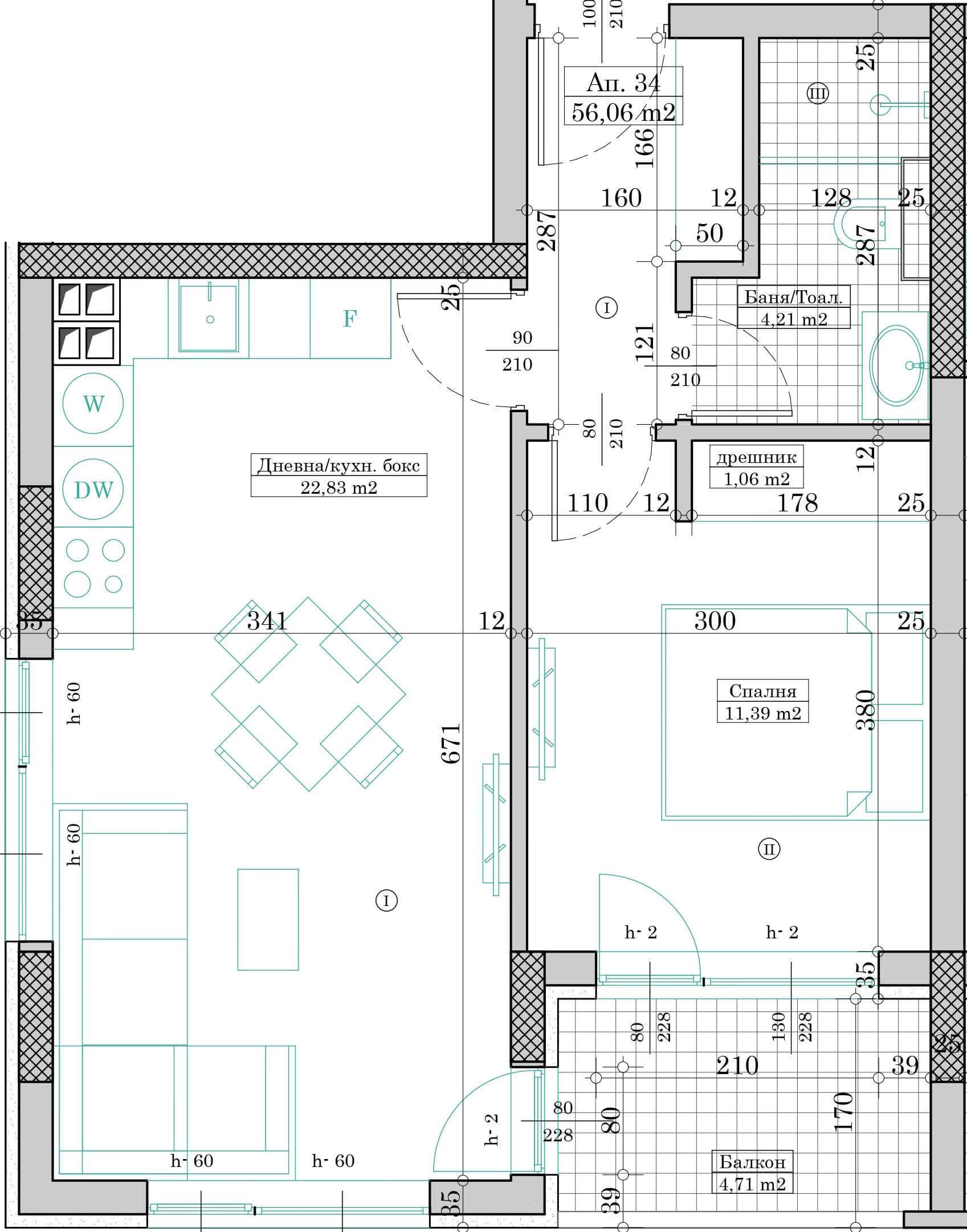
Апартамент А34

Апартамент №34 се състои от дневна с кухненски бокс, спалня, баня с тоалетна, дрешник, коридор и балкон.
Деказ ООД

Златин Златев
Отдел продажби

0888526129 0893435793 dekaz@mail.bg

Деказ ООД

Варна 9000, ул. „Константин Фотинов” №5

Можете да се свържете с нас по телефон или да направите запитване през контактната ни форма. Ще Ви отговорим възможно най-бързо. Фирма Деказ ООД е строител и извършва продажби на апартаментни директно.

Свържете се с нас

← Обратно към
Етаж 7